Overview
- Updated On:
- December 28, 2023
- 1 Bathrooms
- Year Built: 1948
Description
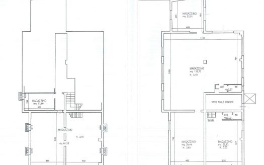
NV21 – FOR SALE: Investment opportunity in the Toscana area! Shop/laboratory equipped with chimney inside a small building. The property is currently leased with a profitability of 7.5%. The front-street area is used as a workshop, the back as a windowed storage room. Bathroom with windowed ante-bathroom inside the premises. The property is completed by a cellar/cycle storage room. Independent heating, low condominium expenses. Energy Classification “G.” € 90,000.
A+
A
B
C
D
E
F
Energy classification G
G
H
Address: VIA DELLA DIRETTISSIMA
City: Bo
Area: Toscana / Savena
State/County: Bologna
Zip: 40141
Country: Italy
Open In Google Maps Property Id : 27280
Price: 90,000 €
Property Size: 57 m2
Bathrooms: 1
Energy classifications: G
ID: NV21
Year Built: 1948
Number of floors in building: 3
Heating: Independent
Garage: 0
Other Features
Cellar
Income/Rental Property
Needs Updating/Renovating
Other Agents
Andrea Curti
Real estate agent
There are values that are handed down from generation to generation, which inextricably li ...












